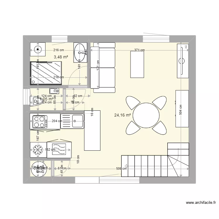
Transformation garage en maison de ville impasse du centre
Plan de

Description
création d'un changement de destination d'un garage en maison de ville.
Détails du plan
- Plan commencé le 03/04/2022 à 16:54 par baba7613
- Modifié le 10/04/2022 à 00:05 par baba7613
- Partage : Lecture
Mots clés
Liste des pièces
Aucune pièce n'a été créé sur ce plan.
Liste des objets
Lien vers ce plan
Lien pour partager le plan Transformation garage en maison de ville impasse du centre
Image du plan
Copier et coller le code ci dessous
Partagez ce plan
Vous aimez ce plan ?
Cliquez sur J'aime et gagnez des fonctionnalités