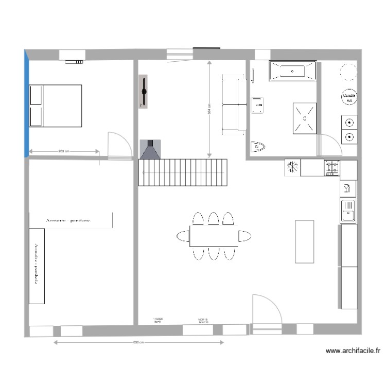
existant rez modif dimanche soir sb coté cuisine
Plan de 0 pièce et 0 m2.

Description
Pour les différents artisants puisque je suis le maître oeuvre.
Détails du plan
- Plan commencé le 29/01/2017 à 17:41 par mgp74
- Modifié le 29/01/2017 à 17:41 par mgp74
- Partage : Lecture
Mots clés
Liste des pièces
Aucune pièce n'a été créé sur ce plan.
Liste des objets
Lien vers ce plan
Lien pour partager le plan existant rez modif dimanche soir sb coté cuisine
Image du plan
Copier et coller le code ci dessous
Partagez ce plan
Vous aimez ce plan ?
Cliquez sur J'aime et gagnez des fonctionnalités