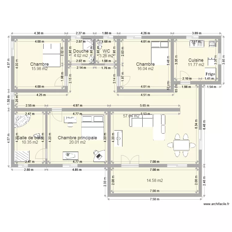
appartement T5
Plan de

Description
je vais construire ma propre maison avec ce plan.nc'est a caractere personnel
Détails du plan
- Plan commencé le 14/06/2018 à 09:29 par latif
- Modifié le 14/06/2018 à 09:29 par latif
- Partage : Lecture
Mots clés
Liste des pièces
Aucune pièce n'a été créé sur ce plan.
Liste des objets
Lien vers ce plan
Lien pour partager le plan appartement T5
Image du plan
Copier et coller le code ci dessous
Partagez ce plan
Vous aimez ce plan ?
Cliquez sur J'aime et gagnez des fonctionnalités