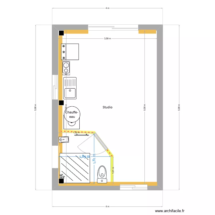
Studio avec mur sud extérieur poteau
Plan de

Description
Studio avec les cotes salle d'eau
Détails du plan
- Plan commencé le 29/03/2025 à 15:07 par Bourli40
- Modifié le 29/03/2025 à 15:38 par Bourli40
- Partage : Utilisation
Mots clés
Liste des pièces
Aucune pièce n'a été créé sur ce plan.
Liste des objets
| Nom de l'objet | Nombre |
|---|---|
| Chauffe eau | 1 |
| Congélateur armoire 200 L | 1 |
| Évier 1 bac | 1 |
| Lave linge hublot | 1 |
| Lave main | 1 |
| Plaque électrique 2 foyers | 1 |
| Poutre | 3 |
| Receveur douche extra plat | 1 |
| Robinet douche/bain | 1 |
| Sèche-serviettes électrique à inertie 1000 W | 1 |
| WC standard | 1 |
Lien vers ce plan
Lien pour partager le plan Studio avec mur sud extérieur poteau
Image du plan
Copier et coller le code ci dessous
Partagez ce plan
Vous aimez ce plan ?
Cliquez sur J'aime et gagnez des fonctionnalités