Lodge test
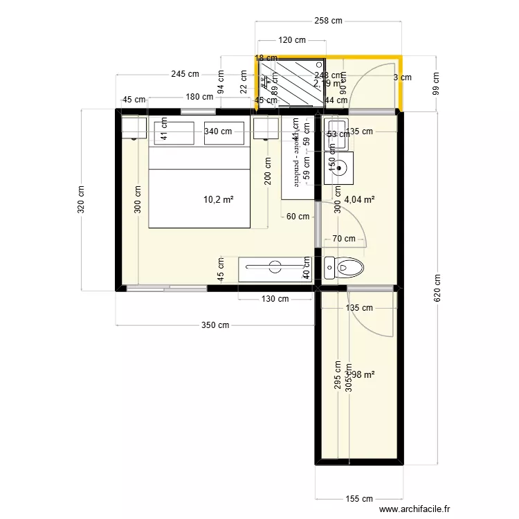
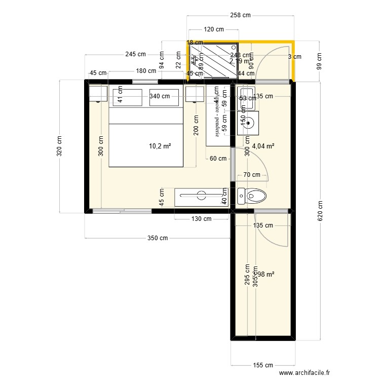
Plan de

Détails du plan
- Plan commencé le 06/12/2025 à 02:40 par stephaneOtt
- Modifié le 06/12/2025 à 02:40 par stephaneOtt
- Partage : Utilisation
Mots clés
Liste des pièces
Aucune pièce n'a été créé sur ce plan.
Liste des objets
| Nom de l'objet | Nombre |
|---|---|
| Armoire - penderie 150 cm | 1 |
| Cabine douche | 1 |
| Lave linge hublot | 1 |
| Lit King Size | 1 |
| Meuble 1 lavabo integré | 1 |
| Robinet douche/bain | 1 |
| Table de chevet | 2 |
| Téléviseur avec meuble | 1 |
| WC standard | 1 |
Lien vers ce plan
Lien pour partager le plan Lodge test
Image du plan
Copier et coller le code ci dessous
Partagez ce plan
Vous aimez ce plan ?
Cliquez sur J'aime et gagnez des fonctionnalités