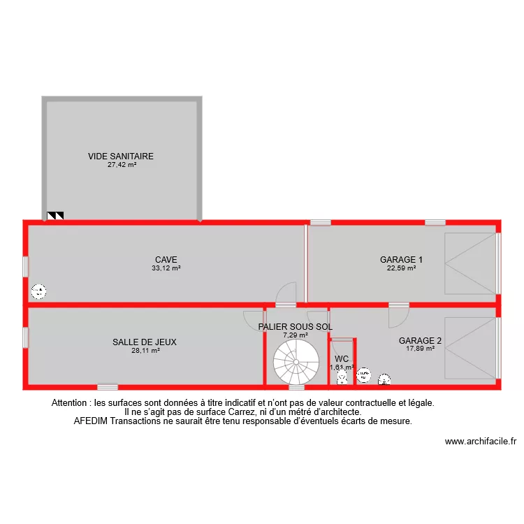
BI 7652 SOUS SOL
Plan de

Détails du plan
- Plan commencé le 01/10/2021 à 10:32 par eidsmaroc
- Modifié le 01/10/2021 à 14:40 par eidsmaroc
- Partage : Utilisation
Mots clés
Liste des pièces
Aucune pièce n'a été créé sur ce plan.
Liste des objets
| Nom de l'objet | Nombre |
|---|---|
| Texte | 1 |
| Chauffe eau | 2 |
| CONDUIT CHEMINEE | 2 |
| Escalier colimaçon | 1 |
| Lavabo | 1 |
| WC standard | 1 |
Lien vers ce plan
Lien pour partager le plan BI 7652 SOUS SOL
Image du plan
Copier et coller le code ci dessous
Partagez ce plan
Vous aimez ce plan ?
Cliquez sur J'aime et gagnez des fonctionnalités