Plan Maisons Kufoli Final
Plan de

Description
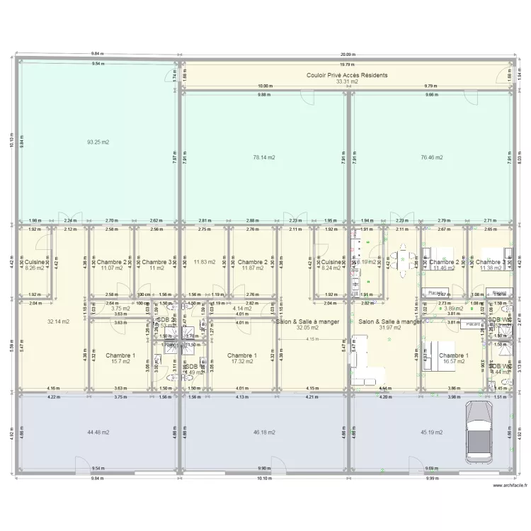
Construction maison plein pied à Kufoli Pointe Noire.
Détails du plan
- Plan commencé le 09/07/2015 à 11:48 par Eymard
- Modifié le 09/07/2015 à 11:48 par Eymard
- Partage : Utilisation
Mots clés
Liste des pièces
Aucune pièce n'a été créé sur ce plan.
Liste des objets
Lien vers ce plan
Lien pour partager le plan Plan Maisons Kufoli Final
Image du plan
Copier et coller le code ci dessous
Partagez ce plan
Vous aimez ce plan ?
Cliquez sur J'aime et gagnez des fonctionnalités