cuisine
Plan de

Détails du plan
- Plan commencé le 15/01/2020 à 16:04 par leidorlf
- Modifié le 14/04/2020 à 18:58 par leidorlf
- Partage : Utilisation
Mots clés
Liste des pièces
Aucune pièce n'a été créé sur ce plan.
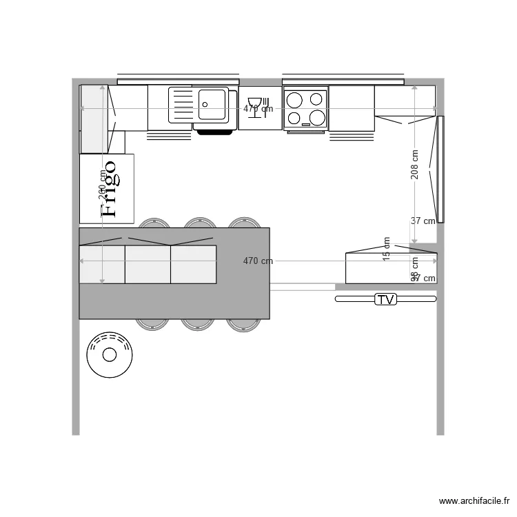
Liste des objets
| Nom de l'objet | Nombre |
|---|---|
| Bar | 1 |
| Évier 1 bac | 1 |
| Four | 1 |
| Lave vaisselle 9 couverts | 1 |
| Meuble cuisine 1 porte | 2 |
| Meuble cuisine 2 portes | 2 |
| Meuble cuisine 3 tiroirs | 2 |
| Meuble cuisine haut 60cm | 3 |
| Meuble cuisine haut 80 cm | 1 |
| Plaque induction 4 foyers | 1 |
| Poêle à bois rond | 1 |
| Poubelle | 1 |
| Réfrigérateur | 1 |
| Tabouret de bar | 6 |
| Téléviseur | 1 |
Lien vers ce plan
Lien pour partager le plan cuisine
Image du plan
Copier et coller le code ci dessous
Partagez ce plan
Vous aimez ce plan ?
Cliquez sur J'aime et gagnez des fonctionnalités