Jess et Thomas
Plan de

Détails du plan
- Plan commencé le 26/01/2022 à 23:17 par Jo Elec
- Modifié le 12/09/2022 à 22:30 par Jo Elec
- Partage : Utilisation
Mots clés
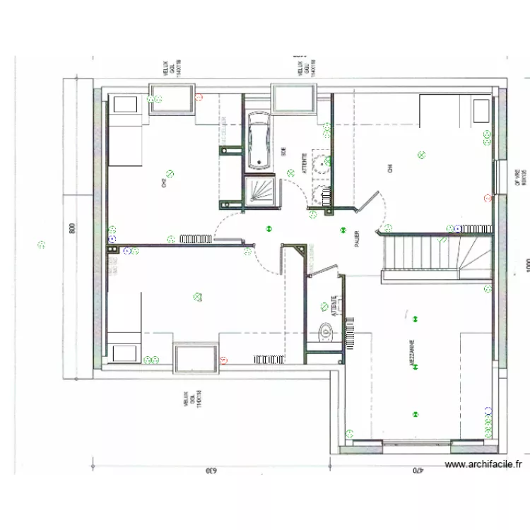
Liste des pièces
Aucune pièce n'a été créé sur ce plan.
Liste des objets
| Nom de l'objet | Nombre |
|---|---|
| Détecteur de mouvement | 2 |
| Eclairage applique | 9 |
| Eclairage plafond | 12 |
| Eclairage spot | 16 |
| Lit 1 pers | 3 |
| Prise | 57 |
| Prise four | 2 |
| Prise haute | 12 |
| Prise lave linge | 1 |
| Prise lave vaisselle | 2 |
| Prise plaque de cuisson | 2 |
| Prise réfrigérateur | 1 |
| Prise réseau RJ45 | 8 |
| Prise sèche linge | 1 |
| Prise Store | 1 |
| Prise volet roulant | 3 |
| Radiateur en fonte 2350 W ( 156 W / élément ) | 5 |
| Tableau électrique | 1 |
Lien vers ce plan
Lien pour partager le plan Jess et Thomas
Image du plan
Copier et coller le code ci dessous
Partagez ce plan
Vous aimez ce plan ?
Cliquez sur J'aime et gagnez des fonctionnalités