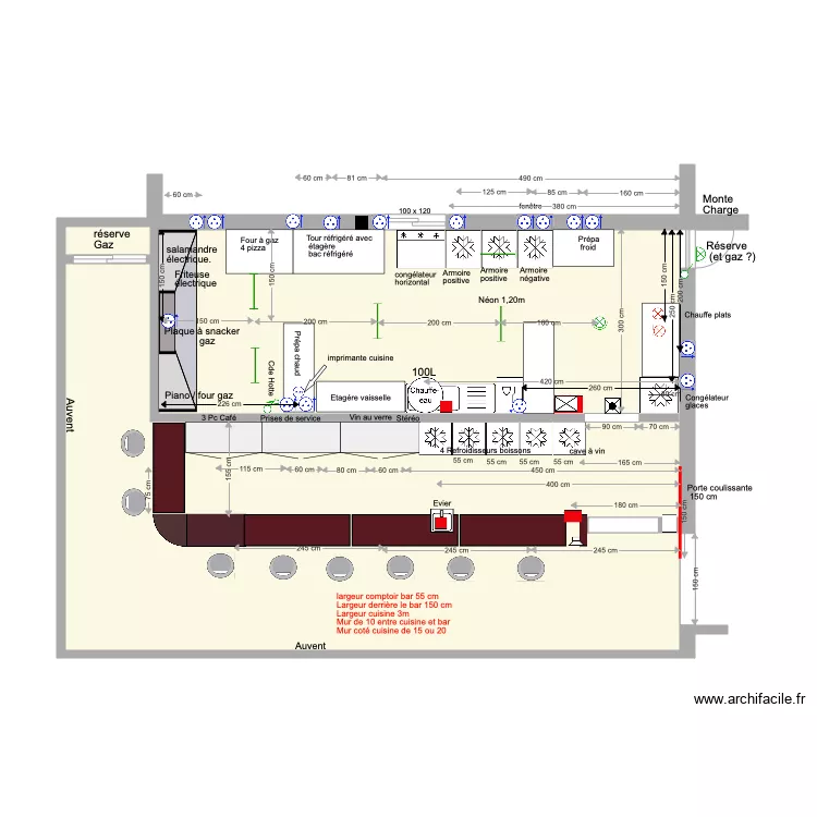
Cuisine Roof Top dimensions du 09 11 20
Plan de

Détails du plan
- Plan commencé le 09/11/2020 à 09:05 par Patricemada
- Modifié le 09/11/2020 à 11:58 par Patricemada
- Partage : Utilisation
Mots clés
Liste des pièces
Aucune pièce n'a été créé sur ce plan.
Liste des objets
Lien vers ce plan
Lien pour partager le plan Cuisine Roof Top dimensions du 09 11 20
Image du plan
Copier et coller le code ci dessous
Partagez ce plan
Vous aimez ce plan ?
Cliquez sur J'aime et gagnez des fonctionnalités