KAYL
Plan de

Description
projet madame KAYL
Détails du plan
- Plan commencé le 25/07/2019 à 16:08 par CHAUFFAGE19
- Modifié le 25/07/2019 à 16:08 par CHAUFFAGE19
- Partage : Utilisation
Mots clés
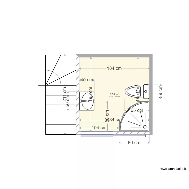
Liste des pièces
Aucune pièce n'a été créé sur ce plan.
Liste des objets
| Nom de l'objet | Nombre |
|---|---|
| Cabine douche quart de cercle | 1 |
| Escalier quart tournant | 1 |
| Meuble lavabo intégré | 1 |
| WC petite taille | 1 |
Lien vers ce plan
Lien pour partager le plan KAYL
Image du plan
Copier et coller le code ci dessous
Partagez ce plan
Vous aimez ce plan ?
Cliquez sur J'aime et gagnez des fonctionnalités