Partie 3 baignoire
Plan de

Détails du plan
- Plan commencé le 10/04/2021 à 22:35 par maxd38
- Modifié le 10/04/2021 à 22:35 par maxd38
- Partage : Utilisation
Mots clés
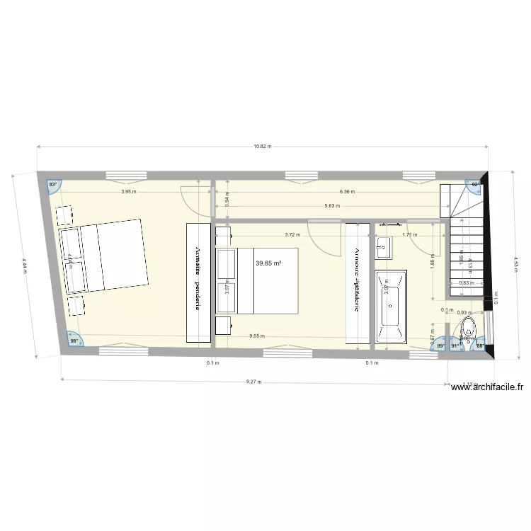
Liste des pièces
Aucune pièce n'a été créé sur ce plan.
Liste des objets
| Nom de l'objet | Nombre |
|---|---|
| Armoire - penderie 200 cm | 2 |
| Baignoire rectangulaire | 1 |
| Escalier quart tournant | 1 |
| Lit queen size | 2 |
| Meuble 1 lavabo integré | 1 |
| Sèche-serviettes électrique à inertie 1000 W | 1 |
| Table de chevet | 4 |
| WC standard | 1 |
Lien vers ce plan
Lien pour partager le plan Partie 3 baignoire
Image du plan
Copier et coller le code ci dessous
Partagez ce plan
Vous aimez ce plan ?
Cliquez sur J'aime et gagnez des fonctionnalités