étude LMN sanitaire 1 ter
Plan de

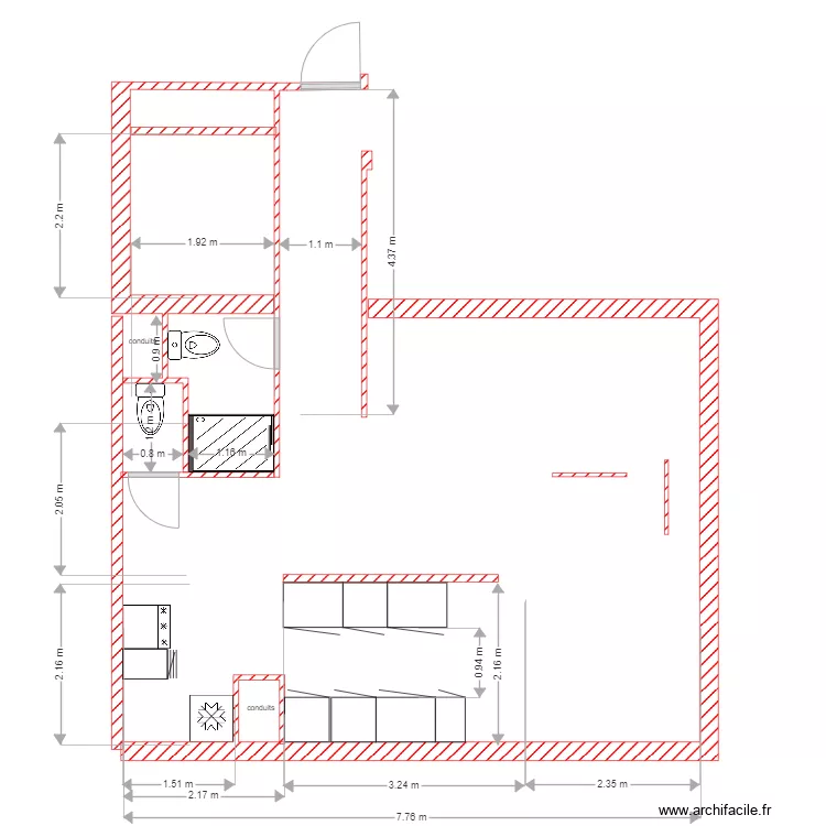
Détails du plan
- Plan commencé le 08/02/2021 à 18:50 par Pebroch08
- Modifié le 08/02/2021 à 18:50 par Pebroch08
- Partage : Utilisation
Mots clés
Liste des pièces
Aucune pièce n'a été créé sur ce plan.
Liste des objets
| Nom de l'objet | Nombre |
|---|---|
| Texte | 2 |
| Cabine douche | 1 |
| Congélateur armoire 200 L | 1 |
| Meuble cuisine 1 porte | 7 |
| Meuble cuisine 1 porte et 1 tiroir | 1 |
| Refrigerateur congelateur | 1 |
| WC standard | 2 |
Lien vers ce plan
Lien pour partager le plan étude LMN sanitaire 1 ter
Image du plan
Copier et coller le code ci dessous
Partagez ce plan
Vous aimez ce plan ?
Cliquez sur J'aime et gagnez des fonctionnalités