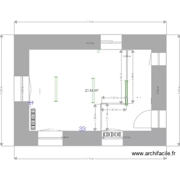
BUREAU URBANISME VIDE AVANT
Plan de

Détails du plan
- Plan commencé le 26/07/2018 à 11:36 par LEHUELGOAT
- Modifié le 29/07/2018 à 08:26 par LEHUELGOAT
- Partage : Utilisation
Mots clés
Liste des pièces
Aucune pièce n'a été créé sur ce plan.
Liste des objets
| Nom de l'objet | Nombre |
|---|---|
| Armoire | 2 |
| Eclairage Tube à fluorescence double | 3 |
| Interrupteur | 1 |
| Prise | 14 |
| Prise réseau RJ45 | 4 |
| Radiateur en fonte 2350 W ( 156 W / élément ) | 2 |
Lien vers ce plan
Lien pour partager le plan BUREAU URBANISME VIDE AVANT
Image du plan
Copier et coller le code ci dessous
Partagez ce plan
Vous aimez ce plan ?
Cliquez sur J'aime et gagnez des fonctionnalités