JDK (IFS RDC) 2
Plan de

Détails du plan
- Plan commencé le 21/11/2023 à 16:59 par Alexandre Dias
- Modifié le 21/11/2023 à 16:59 par Alexandre Dias
- Partage : Utilisation
Mots clés
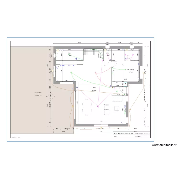
Liste des pièces
Aucune pièce n'a été créé sur ce plan.
Liste des objets
| Nom de l'objet | Nombre |
|---|---|
| Eclairage applique | 2 |
| Eclairage plafond | 11 |
| Eclairage spot | 2 |
| Interrupteur | 5 |
| Interrupteur bouton poussoir | 3 |
| Interrupteur double | 1 |
| Interrupteur va et vient | 8 |
| Prise | 24 |
| Prise 32 A | 1 |
| Prise four | 1 |
| Prise haute | 1 |
| Prise lave linge | 1 |
| Prise lave vaisselle | 1 |
| Prise réfrigérateur | 1 |
| Prise réseau RJ45 | 3 |
| Prise sèche linge | 1 |
| Prise TV | 2 |
| Tableau électrique Basse Tension | 1 |
| VMC bouche d'extraction | 3 |
Lien vers ce plan
Lien pour partager le plan JDK (IFS RDC) 2
Image du plan
Copier et coller le code ci dessous
Partagez ce plan
Vous aimez ce plan ?
Cliquez sur J'aime et gagnez des fonctionnalités