plan sdb darchan
Plan de

Détails du plan
- Plan commencé le 24/06/2023 à 10:24 par nalphand
- Modifié le 24/06/2023 à 11:00 par nalphand
- Partage : Utilisation
Mots clés
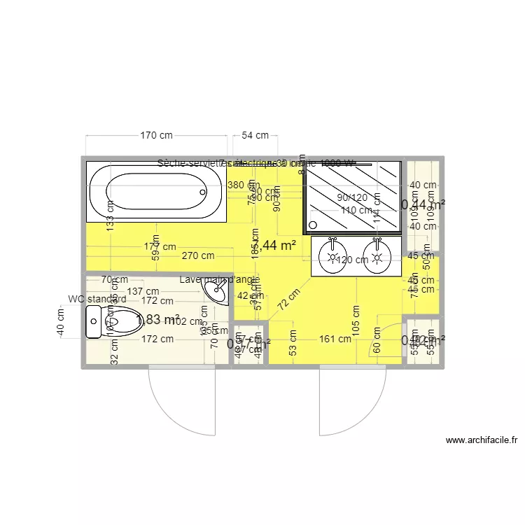
Liste des pièces
Aucune pièce n'a été créé sur ce plan.
Liste des objets
| Nom de l'objet | Nombre |
|---|---|
| Baignoire rectangulaire (encastrable) | 1 |
| Cabine douche | 1 |
| Lave main d'angle | 1 |
| Meuble 2 vasques | 1 |
| Sèche-serviettes électrique à inertie 1000 W | 1 |
| WC standard | 1 |
Lien vers ce plan
Lien pour partager le plan plan sdb darchan
Image du plan
Copier et coller le code ci dessous
Partagez ce plan
Vous aimez ce plan ?
Cliquez sur J'aime et gagnez des fonctionnalités