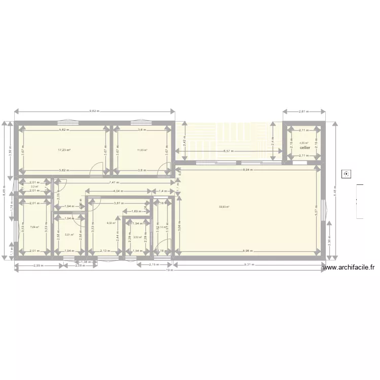
maison 2023 pour cote et ouverture
Plan de

Détails du plan
- Plan commencé le 14/01/2023 à 07:21 par dumasfrancois
- Modifié le 17/01/2023 à 09:18 par dumasfrancois
- Partage : Utilisation
Mots clés
Liste des pièces
Aucune pièce n'a été créé sur ce plan.
Liste des objets
| Nom de l'objet | Nombre |
|---|---|
| Texte | 1 |
| Armoire | 1 |
| Dalle de terrasse bois | 2 |
| Lave linge hublot | 1 |
Lien vers ce plan
Lien pour partager le plan maison 2023 pour cote et ouverture
Image du plan
Copier et coller le code ci dessous
Partagez ce plan
Vous aimez ce plan ?
Cliquez sur J'aime et gagnez des fonctionnalités