2e option
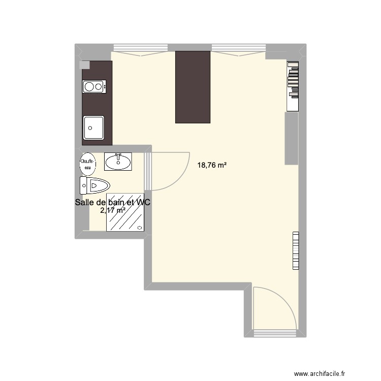
Plan de 2 pièces et 21 m²

Détails du plan
- Plan commencé le 07/01/2026 à 22:57 par vrved
- Modifié le 08/01/2026 à 19:10 par vrved
- Partage : Utilisation
Mots clés
Liste des pièces
- Salle de bain et WC
Liste des objets
| Nom de l'objet | Nombre |
|---|---|
| Bar | 1 |
| Bibliothèque | 1 |
| Chauffe eau | 1 |
| Evier 1 vasque | 1 |
| Meuble lavabo intégré | 1 |
| Plan de travail | 1 |
| Plaque électrique 2 foyers | 1 |
| Poteau béton | 1 |
| Radiateur à inertie 2500W | 1 |
| Receveur douche extra plat | 1 |
| WC petite taille | 1 |
Lien vers ce plan
Lien pour partager le plan 2e option
Image du plan
Copier et coller le code ci dessous
Partagez ce plan
Vous aimez ce plan ?
Cliquez sur J'aime et gagnez des fonctionnalités
Plans de 2 pièces et de 15 à 25 m2
Voir tout les plans de 2 pièces et de 15 à 25 m2
Plans de 2 pièces
Voir tout les plans de 2 pièces
Plans de 15 à 25 m2
MAIRIE DE MOUSSY LE NEUF : REFECTOIRE ELEMENTAIRE DU CENTRE DE LOISIRS LA RIBAMBELLE
par ThomasPages
Voir tout les plans de 15 à 25 m2