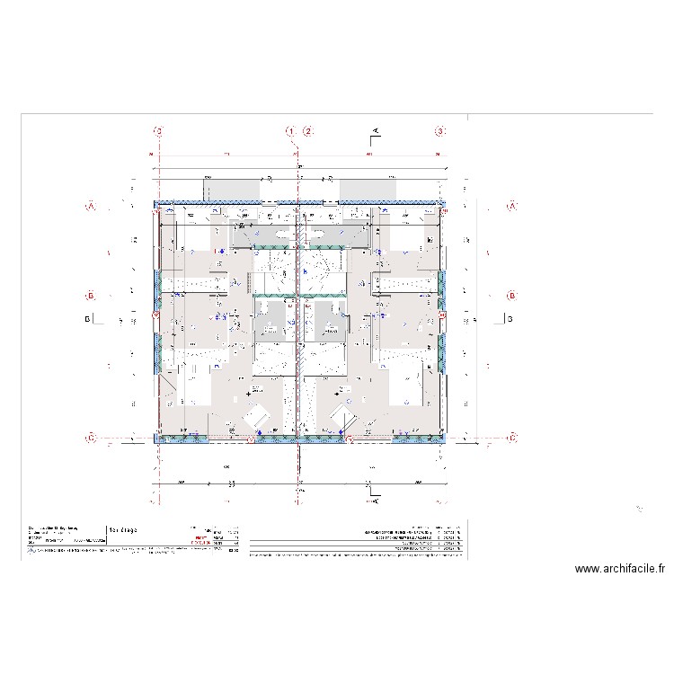
huttin 3 étage
Plan de

Détails du plan
- Plan commencé le 25/11/2025 à 09:13 par EMA-Elec
- Modifié le 27/01/2026 à 11:08 par EMA-Elec
- Partage : Utilisation
Mots clés
Liste des pièces
Aucune pièce n'a été créé sur ce plan.
Liste des objets
| Nom de l'objet | Nombre |
|---|---|
| boite dériv | 4 |
| Eclairage applique | 2 |
| Eclairage plafond | 14 |
| Inter sch3 + prise T13 | 3 |
| Interr sch3 | 8 |
| Interrupteur sch 3, va et vient | 5 |
| Interrupteur sch 6 va et vient | 2 |
| Point lumineux applique | 4 |
| Prise RJ45 | 2 |
| Prise 3xT13 | 16 |
| Sonde thempérature | 6 |
| Store | 6 |
| store | 4 |
Lien vers ce plan
Lien pour partager le plan huttin 3 étage
Image du plan
Copier et coller le code ci dessous
Partagez ce plan
Vous aimez ce plan ?
Cliquez sur J'aime et gagnez des fonctionnalités