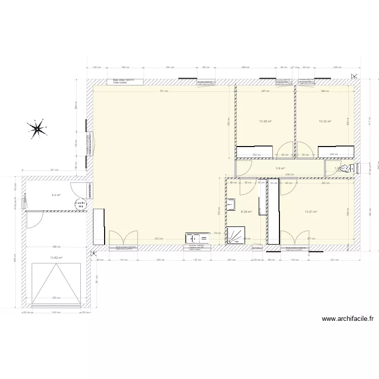
Maison sanitaires placards tele elec
Plan de

Description
ribaute-
Détails du plan
- Plan commencé le 02/09/2019 à 18:58 par Philippe-ad.jacquet
- Modifié le 29/09/2019 à 11:55 par Philippe-ad.jacquet
- Partage : Utilisation
Mots clés
Liste des pièces
Aucune pièce n'a été créé sur ce plan.
Liste des objets
| Nom de l'objet | Nombre |
|---|---|
| Texte | 12 |
| Armoire portes coulissantes | 5 |
| Boussole 4 | 1 |
| Chauffe eau | 1 |
| Évier 2 bacs avec meuble | 1 |
| Meuble 1 lavabo integré | 1 |
| Receveur douche | 1 |
| Vanne manuelle | 2 |
| WC standard | 1 |
Lien vers ce plan
Lien pour partager le plan Maison sanitaires placards tele elec
Image du plan
Copier et coller le code ci dessous
Partagez ce plan
Vous aimez ce plan ?
Cliquez sur J'aime et gagnez des fonctionnalités