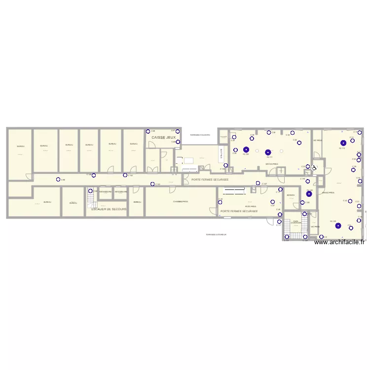
PRIVE 314 positionnement camera MAJ du 25 septembre 2019
Plan de

Détails du plan
- Plan commencé le 25/09/2019 à 10:11 par sfolcher
- Modifié le 25/09/2019 à 10:11 par sfolcher
- Partage : Utilisation
Mots clés
Liste des pièces
Aucune pièce n'a été créé sur ce plan.
Liste des objets
| Nom de l'objet | Nombre |
|---|---|
| Texte | 69 |
| Aire de rotation d'un fauteuil roulant | 1 |
| CAM | 38 |
| Cercle | 2 |
| Escalier droit | 2 |
| Escalier quart tournant | 2 |
| FE | 5 |
| Prise réseau RJ45 | 10 |
| Table basse | 2 |
Lien vers ce plan
Lien pour partager le plan PRIVE 314 positionnement camera MAJ du 25 septembre 2019
Image du plan
Copier et coller le code ci dessous
Partagez ce plan
Vous aimez ce plan ?
Cliquez sur J'aime et gagnez des fonctionnalités