Chambre 2
Plan de 0 pièce et 0 m2.

Détails du plan
- Plan commencé le 01/10/2022 à 19:44 par didou21000
- Modifié le 01/10/2022 à 19:52 par didou21000
- Partage : Utilisation
Mots clés
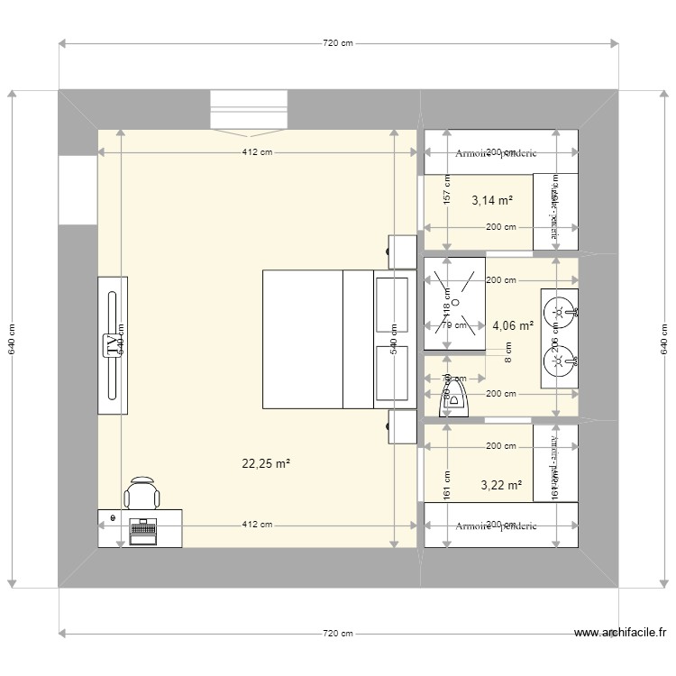
Liste des pièces
Aucune pièce n'a été créé sur ce plan.
Liste des objets
| Nom de l'objet | Nombre |
|---|---|
| Armoire - penderie 150 cm | 2 |
| Armoire - penderie 200 cm | 2 |
| Bureau 100 X 50 cm | 1 |
| Lit King Size | 1 |
| Meuble 2 vasques | 1 |
| Receveur douche extra plat | 1 |
| Table de chevet | 2 |
| Téléviseur avec meuble bas | 1 |
| WC suspendu | 1 |
Lien vers ce plan
Lien pour partager le plan Chambre 2
Image du plan
Copier et coller le code ci dessous
Partagez ce plan
Vous aimez ce plan ?
Cliquez sur J'aime et gagnez des fonctionnalités