CHEMINADE Appt V6 ELEC
Plan de

Description
Réno
Détails du plan
- Plan commencé le 16/11/2019 à 18:01 par Sancy Renovation
- Modifié le 25/11/2019 à 19:33 par Sancy Renovation
- Partage : Utilisation
Mots clés
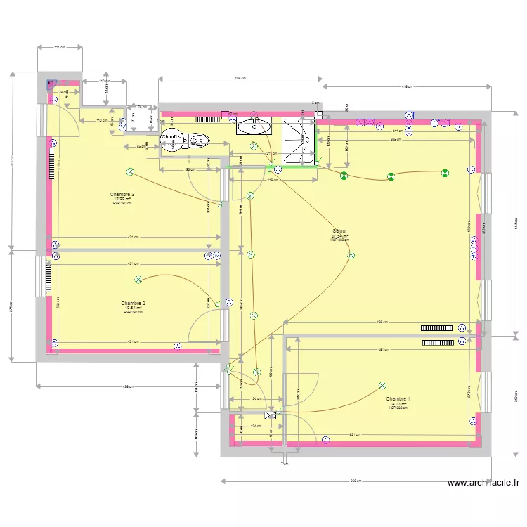
Liste des pièces
Aucune pièce n'a été créé sur ce plan.
Liste des objets
| Nom de l'objet | Nombre |
|---|---|
| Chauffe eau | 1 |
| doublage de 15 | 14 |
| Eclairage plafond | 10 |
| Eclairage spot | 3 |
| Interrupteur | 6 |
| Interrupteur va et vient | 2 |
| Meuble lavabo intégré | 1 |
| Prise | 17 |
| Prise four | 1 |
| Prise haute | 5 |
| Prise lave linge | 1 |
| Prise lave vaisselle | 1 |
| Prise plaque de cuisson | 1 |
| Prise téléphone | 1 |
| Prise TV | 3 |
| Receveur douche | 1 |
| Tableau électrique | 1 |
| WC standard | 1 |
Lien vers ce plan
Lien pour partager le plan CHEMINADE Appt V6 ELEC
Image du plan
Copier et coller le code ci dessous
Partagez ce plan
Vous aimez ce plan ?
Cliquez sur J'aime et gagnez des fonctionnalités