plan 2013 N°1
Plan de

Le 07/02/2013, sultane dit :
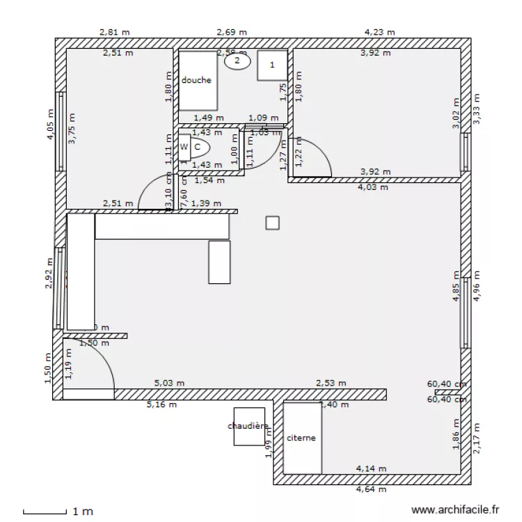
ENTREE :
La largeur de l?entrée doit être au moins égale à la largeur de la porte (actuellement d?après nos mesures 1.27 cm) sinon tu ne pourras pas l?ouvrir en grand.
SALLE DE BAIN
Avec ton plan, le lave-linge est OK si tu ne mets qu?un lavabo
1 = lave-linge, 2 = lavabo
Dans ce plan, la porte de la salle de bain est coulissante pour gagner de la place
Détails du plan
- Plan commencé le 07/02/2013 à 14:40 par sultane
- Modifié le 07/02/2013 à 14:42 par sultane
- Partage : Utilisation
Mots clés
Liste des pièces
Aucune pièce n'a été créé sur ce plan.
Liste des objets
Aucun objet n'a été utilisé sur ce plan.
Lien vers ce plan
Lien pour partager le plan plan 2013 N°1
Image du plan
Copier et coller le code ci dessous
Partagez ce plan
Vous aimez ce plan ?
Cliquez sur J'aime et gagnez des fonctionnalités