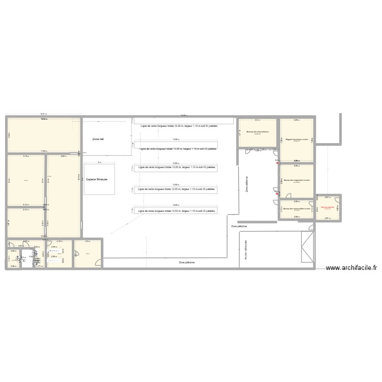
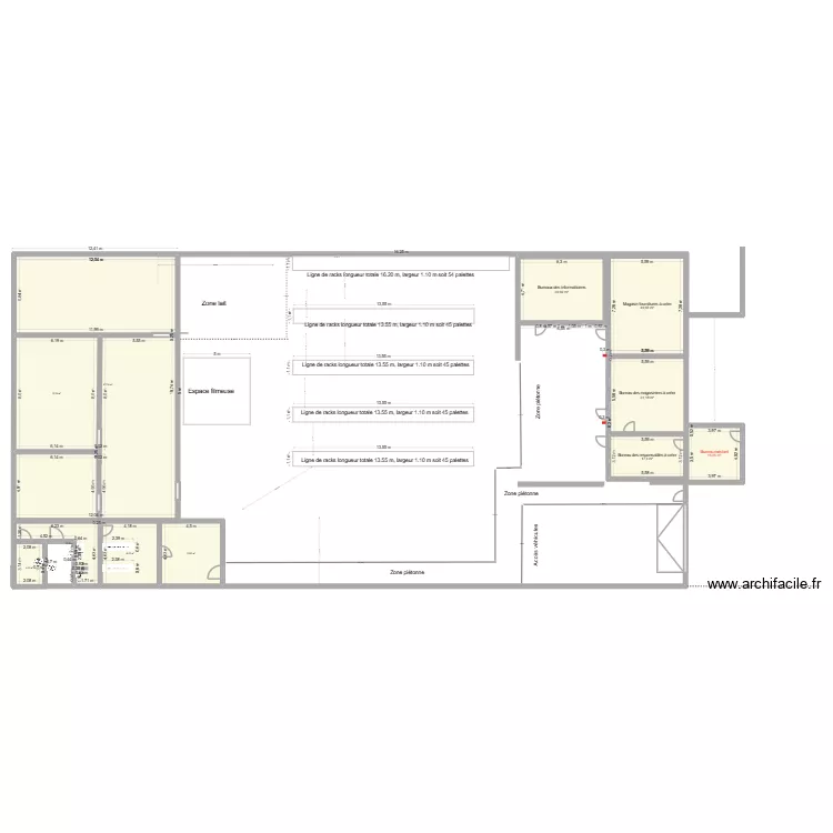
Cotations des pièces à créer
Plan de 0 pièce et 0 m2.

Détails du plan
- Plan commencé le 01/10/2025 à 13:56 par RESTSOS DU COEUR 02
- Modifié le 01/10/2025 à 14:30 par RESTSOS DU COEUR 02
- Partage : Utilisation
Mots clés
Liste des pièces
- Bureau des responsables à créer
- Bureau des magasiniers à créer
- Bureaux des informaticiens
- Bureau existant
- Magasin fournitures à créer
Liste des objets
| Nom de l'objet | Nombre |
|---|---|
| Texte | 11 |
| Armoire - penderie 150 cm | 2 |
| Meuble 1 lavabo integré | 1 |
| Meuble 2 lavabos | 1 |
| Poteau béton | 2 |
| Rectangle | 6 |
| Urinoir | 1 |
| WC standard | 2 |
Lien vers ce plan
Lien pour partager le plan Cotations des pièces à créer
Image du plan
Copier et coller le code ci dessous
Partagez ce plan
Vous aimez ce plan ?
Cliquez sur J'aime et gagnez des fonctionnalités
Plans de 0 pièce
Voir tout les plans de 0 pièce
Plans de 410 à 430 m2
Voir tout les plans de 410 à 430 m2