MONEYNOUSSA@PLANMAISONPERSO
Plan de

Le 05/08/2014, ynoupapa dit :
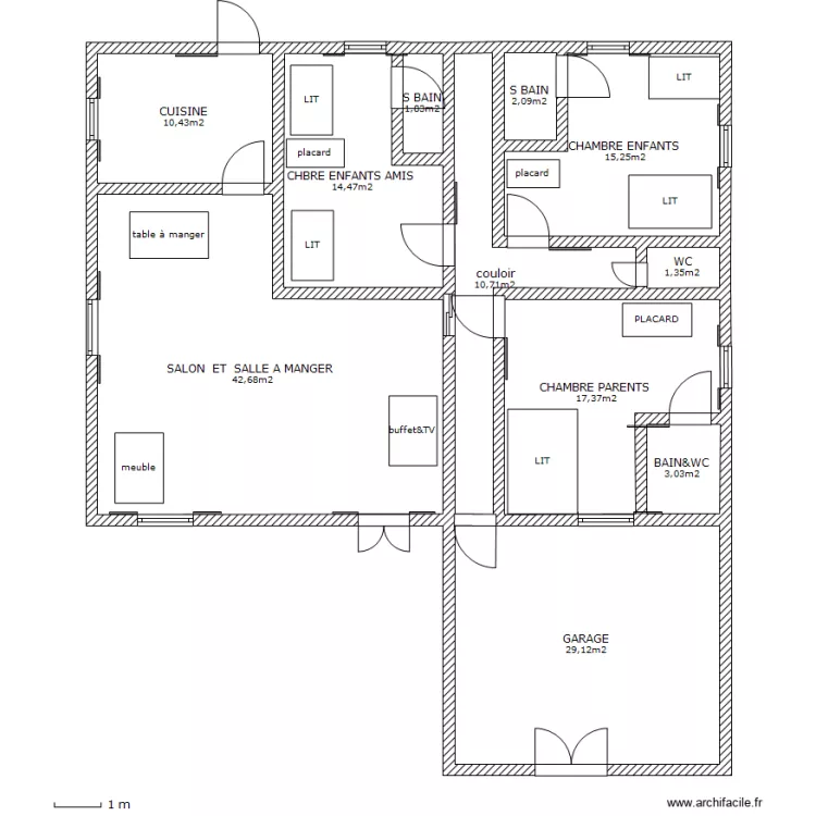
Il ne s'agit vraiment pas de 11 pièces mais véritablement 5 pièces (parfaitement chambres) et et un garage. On a 3 chambres à dormir et dans chacune des chambres une salle de bain.Pour les chambres enfants le wc ne sera pa obligatoire mais possible; dans le salon on aura un escalier (juste 2 marches) pour acceder à la table à manger et cette passerelle conduit à la cuisine.
Détails du plan
- Plan commencé le 05/08/2014 à 17:28 par ynoupapa
- Modifié le 05/08/2014 à 17:28 par ynoupapa
- Partage : Utilisation
Mots clés
Liste des pièces
Aucune pièce n'a été créé sur ce plan.
Liste des objets
Aucun objet n'a été utilisé sur ce plan.
Lien vers ce plan
Lien pour partager le plan MONEYNOUSSA@PLANMAISONPERSO
Image du plan
Copier et coller le code ci dessous
Partagez ce plan
Vous aimez ce plan ?
Cliquez sur J'aime et gagnez des fonctionnalités