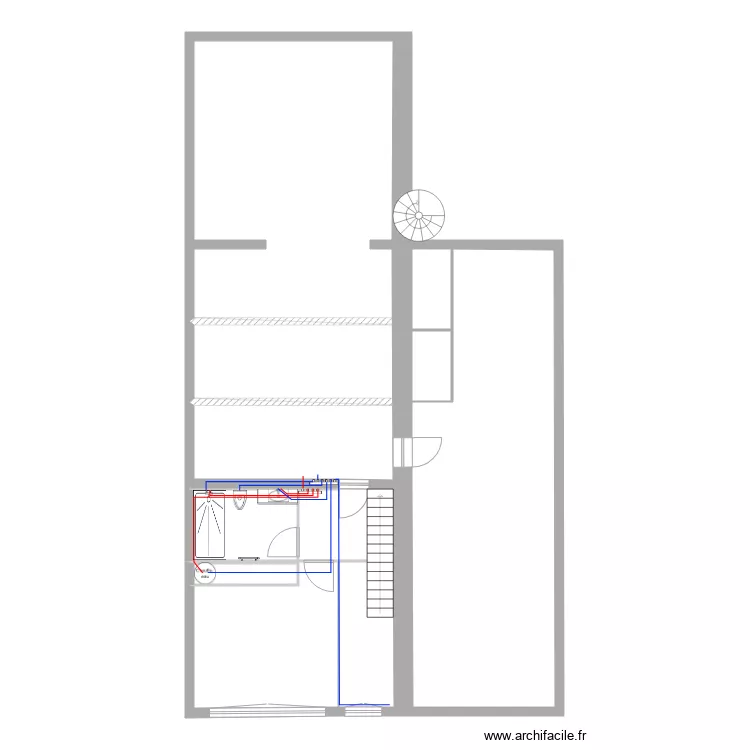
Maison RDC
Plan de

Détails du plan
- Plan commencé le 25/09/2018 à 11:19 par Cjullien
- Modifié le 04/12/2018 à 10:19 par Cjullien
- Partage : Utilisation
Mots clés
Liste des pièces
Aucune pièce n'a été créé sur ce plan.
Liste des objets
| Nom de l'objet | Nombre |
|---|---|
| Chauffe eau | 1 |
| Collecteur 4 départs | 1 |
| Collecteur 6 départs | 1 |
| Escalier colimaçon | 1 |
| Escalier droit | 1 |
| Meuble lavabo intégré | 1 |
| Meuble tiroir | 1 |
| Receveur douche | 1 |
| Robinet douche/bain | 1 |
| Sèche-serviettes électrique à inertie 1000 W | 1 |
| WC suspendu | 1 |
Lien vers ce plan
Lien pour partager le plan Maison RDC
Image du plan
Copier et coller le code ci dessous
Partagez ce plan
Vous aimez ce plan ?
Cliquez sur J'aime et gagnez des fonctionnalités