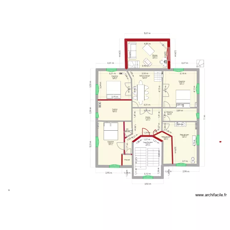
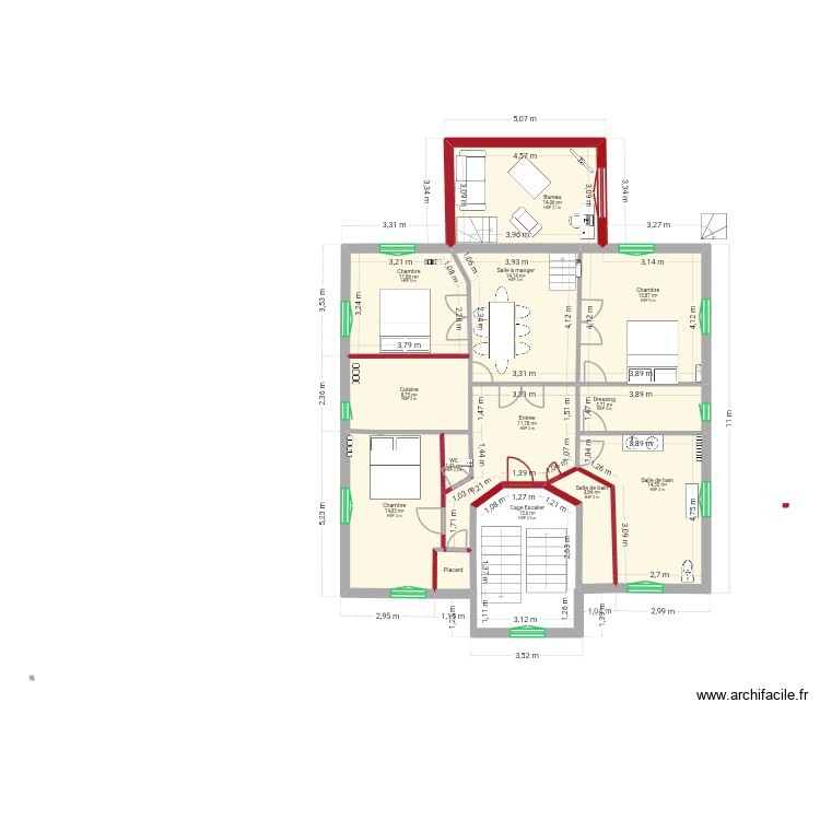
Plan simplifie
Plan de 13 et 131 m²

Description
extension
Détails du plan
- Plan commencé le 15/01/2026 à 16:23 par Denis0
- Modifié le 20/01/2026 à 14:42 par Denis0
- Partage : Utilisation
Mots clés
Liste des pièces
- Salle de bain
- Cuisine
- Chambre
- WC
- Placard
- Entrée
- Cage Escalier
- Salle de bain
- Dressing
- Chambre
- Salle à manger
- Bureau
- Chambre
Liste des objets
| Nom de l'objet | Nombre |
|---|---|
| Bureau 100 X 50 cm | 1 |
| Canapé 2 places | 1 |
| Escalier droit | 3 |
| Escalier quart tournant | 2 |
| Fauteuil 1 place | 1 |
| Lave main | 1 |
| Lit queen size | 3 |
| Meuble 2 vasques | 1 |
| Meuble tiroir | 1 |
| Radiateur en fonte 2350 W ( 156 W / élément ) | 6 |
| Table 6 - 8 pers 180 x 80 cm | 1 |
| Table basse | 1 |
| Téléviseur | 1 |
| WC standard | 1 |
Lien vers ce plan
Lien pour partager le plan Plan simplifie
Image du plan
Copier et coller le code ci dessous
Partagez ce plan
Vous aimez ce plan ?
Cliquez sur J'aime et gagnez des fonctionnalités
Plans de 13 pièces et de 120 à 140 m2
Voir tout les plans de 13 pièces et de 120 à 140 m2
Plans de 13 pièces
Voir tout les plans de 13 pièces
Plans de 120 à 140 m2
Voir tout les plans de 120 à 140 m2