atelier
Plan de

Détails du plan
- Plan commencé le 17/06/2021 à 01:48 par first class services
- Modifié le 17/06/2021 à 02:41 par first class services
- Partage : Utilisation
Mots clés
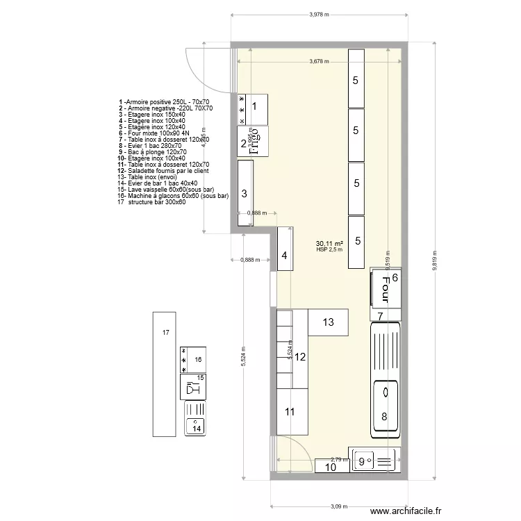
Liste des pièces
Aucune pièce n'a été créé sur ce plan.
Liste des objets
| Nom de l'objet | Nombre |
|---|---|
| Texte | 28 |
| Bar | 6 |
| Congélateur armoire 200 L | 2 |
| Etagère redimenssionnable | 7 |
| Évier 1 bac | 2 |
| Évier 1 bac avec meuble | 1 |
| Four | 1 |
| Ilot central | 4 |
| Lave vaisselle 9 couverts | 1 |
| Réfrigérateur | 1 |
Lien vers ce plan
Lien pour partager le plan atelier
Image du plan
Copier et coller le code ci dessous
Partagez ce plan
Vous aimez ce plan ?
Cliquez sur J'aime et gagnez des fonctionnalités