CCT VL CTA 51 V2 Cernay Lès Reims
Plan de

Détails du plan
- Plan commencé le 08/03/2022 à 14:06 par protechnologies
- Modifié le 08/03/2022 à 14:06 par protechnologies
- Partage : Utilisation
Mots clés
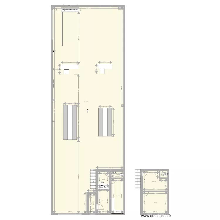
Liste des pièces
Aucune pièce n'a été créé sur ce plan.
Liste des objets
| Nom de l'objet | Nombre |
|---|---|
| Texte | 1 |
| Banc de freinage muller | 2 |
| Bureau rectangulaire 140 X 80 cm | 1 |
| Caisson à tiroir | 1 |
| Escalier droit | 2 |
| Etagère redimenssionnable | 3 |
| fourreau | 1 |
| Lave main | 2 |
| Rectangle | 17 |
| Téléviseur | 2 |
| WC standard | 2 |
Lien vers ce plan
Lien pour partager le plan CCT VL CTA 51 V2 Cernay Lès Reims
Image du plan
Copier et coller le code ci dessous
Partagez ce plan
Vous aimez ce plan ?
Cliquez sur J'aime et gagnez des fonctionnalités