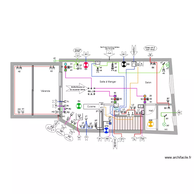
Oli Rez de chaussée avec fil 18-08-23 105a fin fin fin
Plan de

Description
Olivier Rue silvela 105a
Détails du plan
- Plan commencé le 18/08/2023 à 07:53 par olinoda
- Modifié le 18/08/2023 à 07:55 par olinoda
- Partage : Lecture
Mots clés
Liste des pièces
Aucune pièce n'a été créé sur ce plan.
Liste des objets
| Nom de l'objet | Nombre |
|---|---|
| Texte | 148 |
| B.Dériv | 1 |
| baff | 3 |
| Bar | 2 |
| bipolaire | 5 |
| bipolaire+lampe J-Rouge | 1 |
| Bouton poussoir | 13 |
| Cercle | 20 |
| Eclairage applique | 8 |
| Eclairage plafond | 7 |
| Eclairage projecteur | 1 |
| Eclairage spot | 5 |
| Equipement de lutte contre incendie | 1 |
| Escalier droit | 2 |
| Flêche | 2 |
| Flêche | 21 |
| Interrupteur bouton poussoir | 2 |
| prise | 27 |
| Prise de terre | 1 |
| prise téléphone | 7 |
| prise triphasée | 1 |
| Receveur douche | 1 |
| Rectangle | 2 |
| Thermostat | 1 |
| WC suspendu | 1 |
Lien vers ce plan
Lien pour partager le plan Oli Rez de chaussée avec fil 18-08-23 105a fin fin fin
Image du plan
Copier et coller le code ci dessous
Partagez ce plan
Vous aimez ce plan ?
Cliquez sur J'aime et gagnez des fonctionnalités