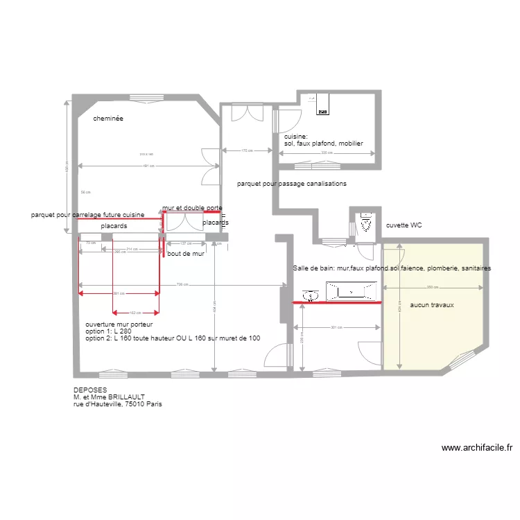
brillaut existant démolition
Plan de

Détails du plan
- Plan commencé le 30/06/2018 à 13:47 par serralunga
- Modifié le 30/06/2018 à 14:52 par serralunga
- Partage : Utilisation
Mots clés
Liste des pièces
Aucune pièce n'a été créé sur ce plan.
Liste des objets
| Nom de l'objet | Nombre |
|---|---|
| Texte | 14 |
| Baignoire rectangulaire | 1 |
| Chaudière à Gaz | 1 |
| Compteur électrique | 1 |
| Meuble lavabo intégré | 1 |
| Radiateur à inertie 1500W | 1 |
| Sèche-serviettes électrique à inertie 1000 W | 1 |
| WC petite taille | 1 |
Lien vers ce plan
Lien pour partager le plan brillaut existant démolition
Image du plan
Copier et coller le code ci dessous
Partagez ce plan
Vous aimez ce plan ?
Cliquez sur J'aime et gagnez des fonctionnalités