plan pour cuisine
Plan de

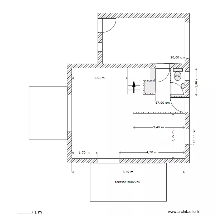
Le 18/11/2012, mv1 dit :
Maison non encore construite. Cuisine d'au moins 10m².
La cuisine se trouvera dans le quart Sud-Est du plan et sera ouverte sur la salle à manger.
Elle aura une fenêtre à l'Est d'1m de large et d'un seul battant. Elle devrait être à 1.27m du sol.
La cloison Nord peut être redessinée pour mieux s'adapter aux dimensions de la cuisine :
- elle peut être déplacée vers le Nord jusqu'à 2.95m du mur Sud;
- sa longueur peut varier mais doit laisser une sensation d'ouverture.
Le mur Sud intégrera une porte fenêtre coulissante à galandage et sera l'apport lumineux de la salle à manger.
La cuisine doit laisser suffisamment d'espace à la salle à manger pour lui permettre d'accueillir une grande table.
Nous la souhaitons contemporaine et sobre.
Nous cuisinons à deux et il faut donc une grande surface de plan(s) de travail(s).
Nous souhaitons pouvoir s'y assoir à 2 pour petit déjeuner ou casser la croûte.
Il faudra prévoir une place pour un lave vaisselle, un four et un four micro-ondes tous deux encastrables.
Il intégrera un frigo 60cm de large qui devra pouvoir être remplacé plus tard par un frigo de 90cm.
Elle devra contenir les réserves alimentaires en plus des ustensiles de cuisine et devra donc avoir un maximum de rangements.
Détails du plan
Mots clés
Liste des pièces
Aucune pièce n'a été créé sur ce plan.
Liste des objets
Aucun objet n'a été utilisé sur ce plan.
Lien vers ce plan
Lien pour partager le plan plan pour cuisine
Image du plan
Copier et coller le code ci dessous
Partagez ce plan
Vous aimez ce plan ?
Cliquez sur J'aime et gagnez des fonctionnalités