rénovation maison principale

Plan de 0 pièce et 0 m2.

Description

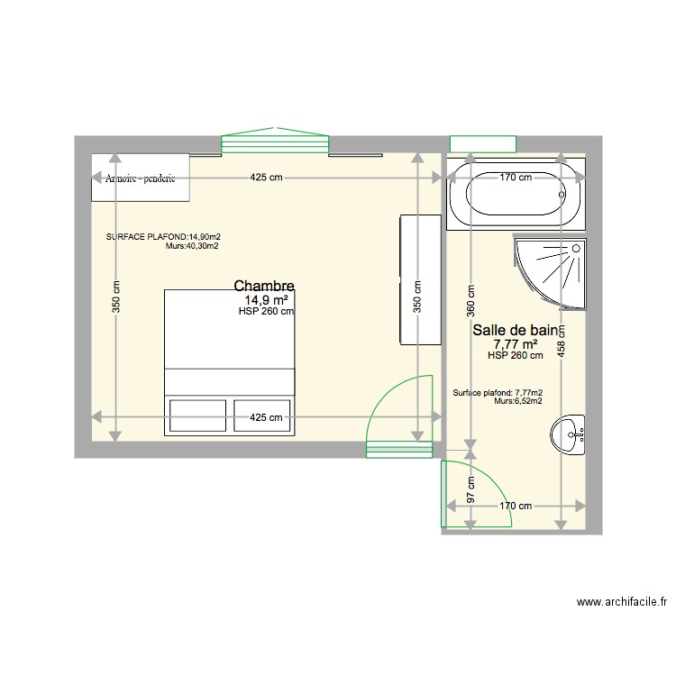
Plan de rénovation murs et plafonds chambre et salle d'eau.

Détails du plan

Mots clés

A construire A louer A rénover A vendre Appartement Atelier Bureau Chez moi Coupe Duplex Electricité Extension Facade Ferme Garage Jardin Loft Magasin Maison Piscine
  • Liste des pièces

    Aucune pièce n'a été créé sur ce plan.

  • Lien vers ce plan

    Lien pour partager le plan rénovation maison principale


    Image du plan

    Copier et coller le code ci dessous


    Partagez ce plan


    Vous aimez ce plan ?

    Cliquez sur J'aime et gagnez des fonctionnalités



    Signaler ce plan