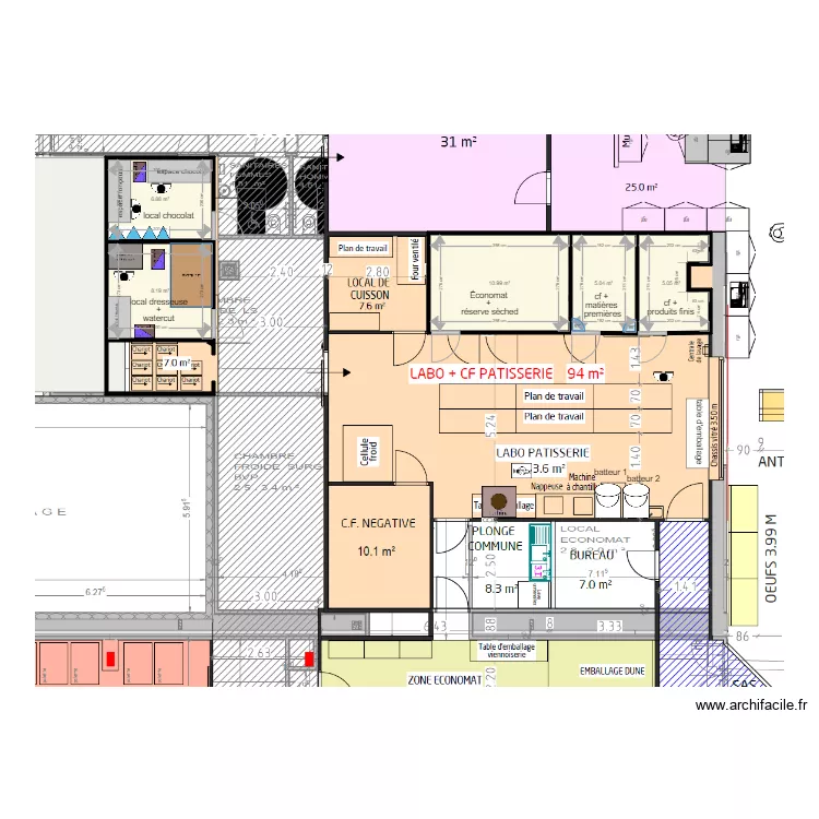
Seltz pâtisserie V3
Plan de

Détails du plan
- Plan commencé le 07/04/2021 à 13:46 par manuel72
- Modifié le 07/04/2021 à 16:10 par manuel72
- Partage : Utilisation
Mots clés
Liste des pièces
Aucune pièce n'a été créé sur ce plan.
Liste des objets
| Nom de l'objet | Nombre |
|---|---|
| Texte | 11 |
| BATTEUR | 2 |
| collaborateur | 4 |
| échelle 600/400 | 3 |
| etagere | 1 |
| Plan de travail | 4 |
| turbine | 1 |
Lien vers ce plan
Lien pour partager le plan Seltz pâtisserie V3
Image du plan
Copier et coller le code ci dessous
Partagez ce plan
Vous aimez ce plan ?
Cliquez sur J'aime et gagnez des fonctionnalités