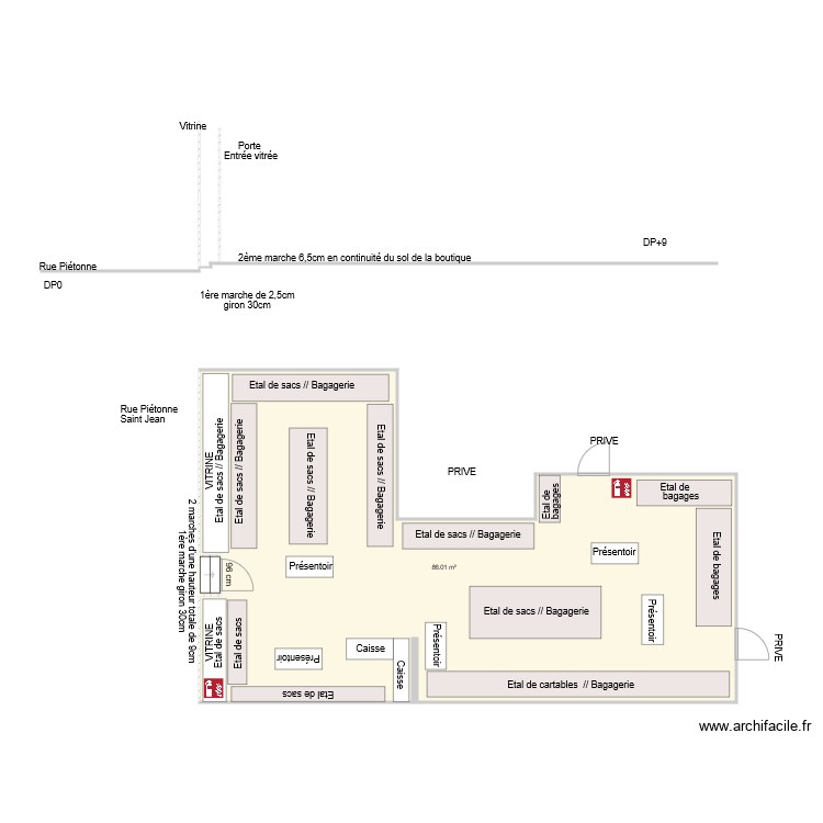
MAROQUINERIE ST JEAN AVANT TRAVAUX
Plan de 0 pièce et 0 m2.

Détails du plan
- Plan commencé le 19/04/2018 à 15:21 par ERPexpertise
- Modifié le 17/05/2018 à 09:40 par ERPexpertise
- Partage : Utilisation
Mots clés
Liste des pièces
Aucune pièce n'a été créé sur ce plan.
Liste des objets
| Nom de l'objet | Nombre |
|---|---|
| Texte | 34 |
| Bar | 13 |
| Escalier droit | 1 |
| Extincteur | 2 |
| Plan de travail | 8 |
Lien vers ce plan
Lien pour partager le plan MAROQUINERIE ST JEAN AVANT TRAVAUX
Image du plan
Copier et coller le code ci dessous
Partagez ce plan
Vous aimez ce plan ?
Cliquez sur J'aime et gagnez des fonctionnalités