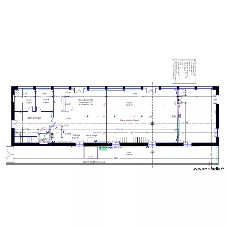
elec mercorne RDC
Plan de

Description
Plan implantation electrique Mercorne
Détails du plan
- Plan commencé le 16/07/2021 à 18:00 par Guillaume48 Modulaire
- Modifié le 17/07/2021 à 11:17 par Guillaume48 Modulaire
- Partage : Utilisation
Mots clés
Liste des pièces
Aucune pièce n'a été créé sur ce plan.
Liste des objets
| Nom de l'objet | Nombre |
|---|---|
| Légende | 1 |
| Eclairage applique | 4 |
| Eclairage plafond | 2 |
| Eclairage projecteur | 1 |
| Interrupteur | 4 |
| Interrupteur avec voyant | 1 |
| Interrupteur va et vient | 8 |
| Point lumineux | 6 |
| Prise | 19 |
| Prise | 6 |
| Prise 32 A | 1 |
| Prise réseau RJ45 | 4 |
| Tableau électrique | 1 |
| Tableau électrique Basse Tension | 1 |
| VMC bouche d'extraction | 2 |
Lien vers ce plan
Lien pour partager le plan elec mercorne RDC
Image du plan
Copier et coller le code ci dessous
Partagez ce plan
Vous aimez ce plan ?
Cliquez sur J'aime et gagnez des fonctionnalités