Noel SDB projet
Plan de

Détails du plan
- Plan commencé le 28/12/2022 à 15:43 par vero55
- Modifié le 28/12/2022 à 15:43 par vero55
- Partage : Utilisation
Mots clés
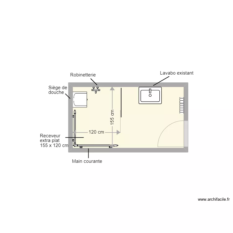
Liste des pièces
Aucune pièce n'a été créé sur ce plan.
Liste des objets
| Nom de l'objet | Nombre |
|---|---|
| Texte | 5 |
| barre | 6 |
| Meuble 1 lavabo integré | 1 |
| Radiateur en fonte 2350 W ( 156 W / élément ) | 1 |
| Robinet douche/bain | 1 |
| Sèche-serviettes électrique à inertie 1000 W | 2 |
| Table à langer | 1 |
Lien vers ce plan
Lien pour partager le plan Noel SDB projet
Image du plan
Copier et coller le code ci dessous
Partagez ce plan
Vous aimez ce plan ?
Cliquez sur J'aime et gagnez des fonctionnalités