Final 2
Plan de

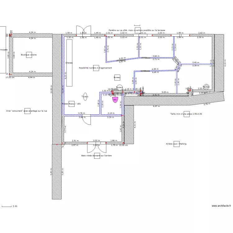
Description
Projet de cabinet de kiné, local au rez de chaussée.
Idéalement 5 cabines de travail, et une salle de gym (pour vélo,trampoline, ... mais sinon tant pis)
A rajouter, et la est le problème : les WC (handicapés), le bureau de secrétariat, la salle d'attente (4-5 places) et surtout là où on se lave les mains, se repose, et mange, donc petite salle de pause...
IL y a une ouverture sur la grande longueur uniquement par des fenêtres. Pour l'instant tout ceci est brut, et en attente de fluides (les ronds représentants les tuyaux). Il y a une baie vitrée en bas sur la petite partie, mais ceci donne sur l'arrière du batiment.
Merci d'avance, toute aide est appréciée !! :-)
Détails du plan
- Plan commencé le 17/08/2014 à 14:20 par Cedw
- Modifié le 17/08/2014 à 14:26 par Cedw
- Partage : Utilisation
Mots clés
Liste des pièces
Aucune pièce n'a été créé sur ce plan.
Liste des objets
Aucun objet n'a été utilisé sur ce plan.
Lien vers ce plan
Lien pour partager le plan Final 2
Image du plan
Copier et coller le code ci dessous
Partagez ce plan
Vous aimez ce plan ?
Cliquez sur J'aime et gagnez des fonctionnalités