piece aménagée version 2
Plan de

Détails du plan
- Plan commencé le 27/08/2018 à 13:08 par fm multi services
- Modifié le 27/08/2018 à 13:08 par fm multi services
- Partage : Utilisation
Mots clés
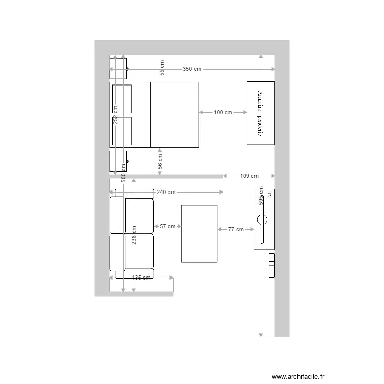
Liste des pièces
Aucune pièce n'a été créé sur ce plan.
Liste des objets
| Nom de l'objet | Nombre |
|---|---|
| Armoire - penderie 150 cm | 1 |
| Canapé 2 places | 1 |
| Lit double standard | 1 |
| Radiateur à inertie 1000W | 1 |
| Table basse | 1 |
| Table de chevet | 2 |
| Téléviseur avec meuble | 1 |
Lien vers ce plan
Lien pour partager le plan piece aménagée version 2
Image du plan
Copier et coller le code ci dessous
Partagez ce plan
Vous aimez ce plan ?
Cliquez sur J'aime et gagnez des fonctionnalités