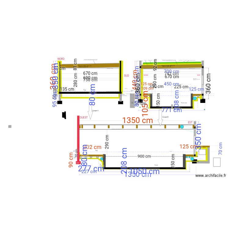
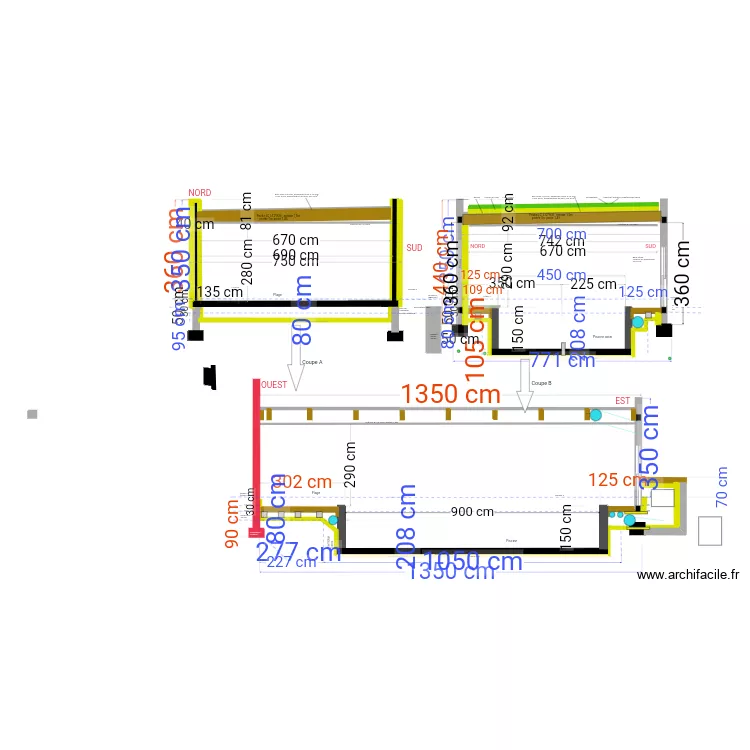
piscine coupe béton cellulaire v1
Plan de 0 pièce et 0 m2.

Détails du plan
- Plan commencé le 28/03/2023 à 17:53 par yl12345678
- Modifié le 04/04/2023 à 08:12 par yl12345678
- Partage : Lecture
Mots clés
Liste des pièces
Aucune pièce n'a été créé sur ce plan.
Lien vers ce plan
Lien pour partager le plan piscine coupe béton cellulaire v1
Image du plan
Copier et coller le code ci dessous
Partagez ce plan
Vous aimez ce plan ?
Cliquez sur J'aime et gagnez des fonctionnalités