01elec prises courrant 16A n°2
Plan de

Description
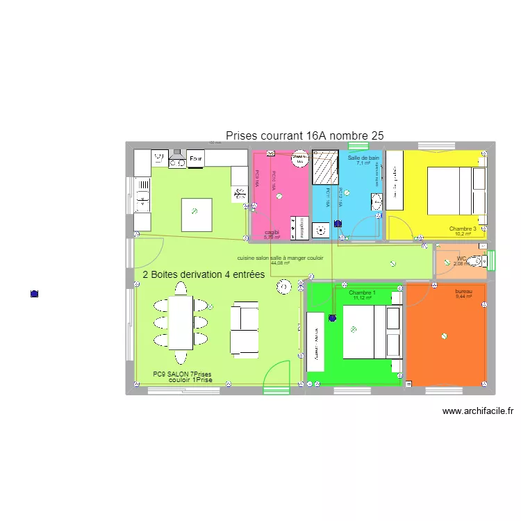
plan pour creation schema unifilaire d'une maison 100m carres
Détails du plan
- Plan commencé le 30/09/2022 à 11:26 par raminaphil
- Modifié le 30/09/2022 à 11:26 par raminaphil
- Partage : Utilisation
Mots clés
Liste des pièces
Aucune pièce n'a été créé sur ce plan.
Liste des objets
Lien vers ce plan
Lien pour partager le plan 01elec prises courrant 16A n°2
Image du plan
Copier et coller le code ci dessous
Partagez ce plan
Vous aimez ce plan ?
Cliquez sur J'aime et gagnez des fonctionnalités