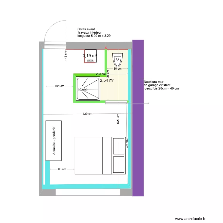
aménagement garage en chambre
Plan de

Description
chambre
Détails du plan
- Plan commencé le 15/08/2024 à 15:52 par hugopaul
- Modifié le 31/10/2024 à 17:55 par hugopaul
- Partage : Lecture
Mots clés
Liste des pièces
Aucune pièce n'a été créé sur ce plan.
Liste des objets
| Nom de l'objet | Nombre |
|---|---|
| Texte | 3 |
| Armoire - penderie 150 cm | 1 |
| Chaudière à Gaz | 1 |
| Lit double standard | 1 |
| Receveur douche | 1 |
| WC suspendu | 1 |
Lien vers ce plan
Lien pour partager le plan aménagement garage en chambre
Image du plan
Copier et coller le code ci dessous
Partagez ce plan
Vous aimez ce plan ?
Cliquez sur J'aime et gagnez des fonctionnalités