SCI garage
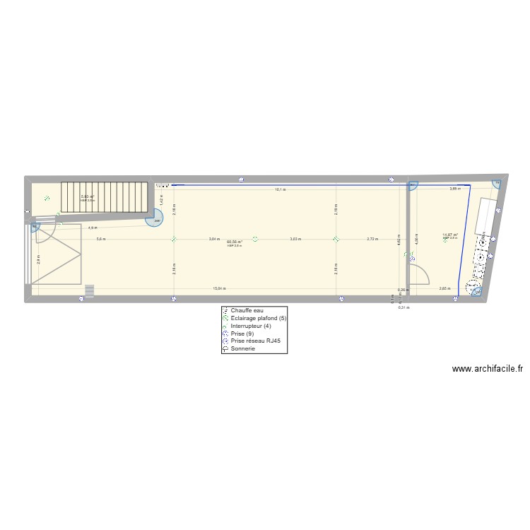
Plan de 7 et 161 m²

Détails du plan
- Plan commencé le 05/11/2025 à 08:41 par StphanePrat
- Modifié le 24/11/2025 à 15:02 par StphanePrat
- Partage : Utilisation
Mots clés
Liste des pièces
Liste des objets
| Nom de l'objet | Nombre |
|---|---|
| Légende | 1 |
| Chauffe eau | 1 |
| Collecteur 6 départs | 1 |
| Eclairage plafond | 5 |
| Escalier droit | 1 |
| Interrupteur | 4 |
| Lave linge hublot | 2 |
| Meuble 1 lavabo integré | 1 |
| Plan de travail | 1 |
| Prise | 9 |
| Prise réseau RJ45 | 1 |
| Sonnerie | 1 |
| Tableau 3x18 | 1 |
Lien vers ce plan
Lien pour partager le plan SCI garage
Image du plan
Copier et coller le code ci dessous
Partagez ce plan
Vous aimez ce plan ?
Cliquez sur J'aime et gagnez des fonctionnalités
Plans de 7 pièces et de 150 à 170 m2
Voir tout les plans de 7 pièces et de 150 à 170 m2
Plans de 7 pièces
Voir tout les plans de 7 pièces
Plans de 150 à 170 m2
Voir tout les plans de 150 à 170 m2