CCT VL Perpignan C BALARD
Plan de

Détails du plan
- Plan commencé le 02/02/2021 à 22:09 par protechnologies
- Modifié le 02/02/2021 à 22:40 par protechnologies
- Partage : Utilisation
Mots clés
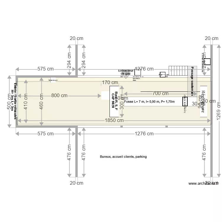
Liste des pièces
Aucune pièce n'a été créé sur ce plan.
Liste des objets
| Nom de l'objet | Nombre |
|---|---|
| Texte | 6 |
| Banc de freinage muller | 1 |
| Chevron | 1 |
| Compresseur | 1 |
| Escalier droit | 1 |
| fourreau | 1 |
| levage auxiliaire | 1 |
| Manometre | 1 |
| Pollution | 1 |
| pupitre banc | 1 |
| Rectangle | 3 |
| Réglopahre | 1 |
Lien vers ce plan
Lien pour partager le plan CCT VL Perpignan C BALARD
Image du plan
Copier et coller le code ci dessous
Partagez ce plan
Vous aimez ce plan ?
Cliquez sur J'aime et gagnez des fonctionnalités