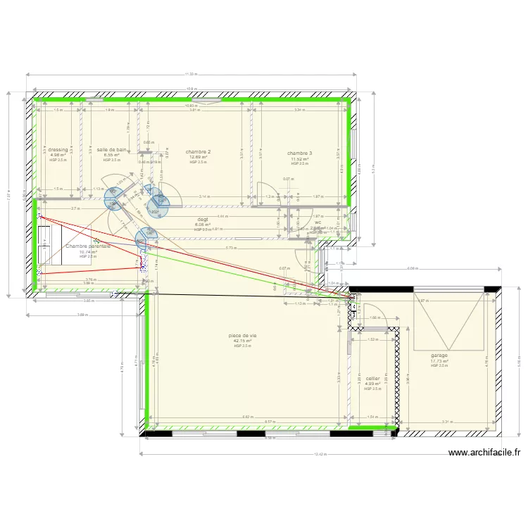
2lectricité chambre parentale 23102021
Plan de

Détails du plan
- Plan commencé le 23/10/2021 à 07:22 par jumpwill
- Modifié le 23/10/2021 à 07:53 par jumpwill
- Partage : Utilisation
Mots clés
Liste des pièces
Aucune pièce n'a été créé sur ce plan.
Liste des objets
| Nom de l'objet | Nombre |
|---|---|
| Eclairage plafond | 1 |
| Interrupteur | 2 |
| Lit double standard | 1 |
| Prise | 5 |
| Prise réseau RJ45 | 1 |
| Prise volet roulant | 1 |
| Tableau électrique Basse Tension | 3 |
Lien vers ce plan
Lien pour partager le plan 2lectricité chambre parentale 23102021
Image du plan
Copier et coller le code ci dessous
Partagez ce plan
Vous aimez ce plan ?
Cliquez sur J'aime et gagnez des fonctionnalités