Said1
Plan de

Description
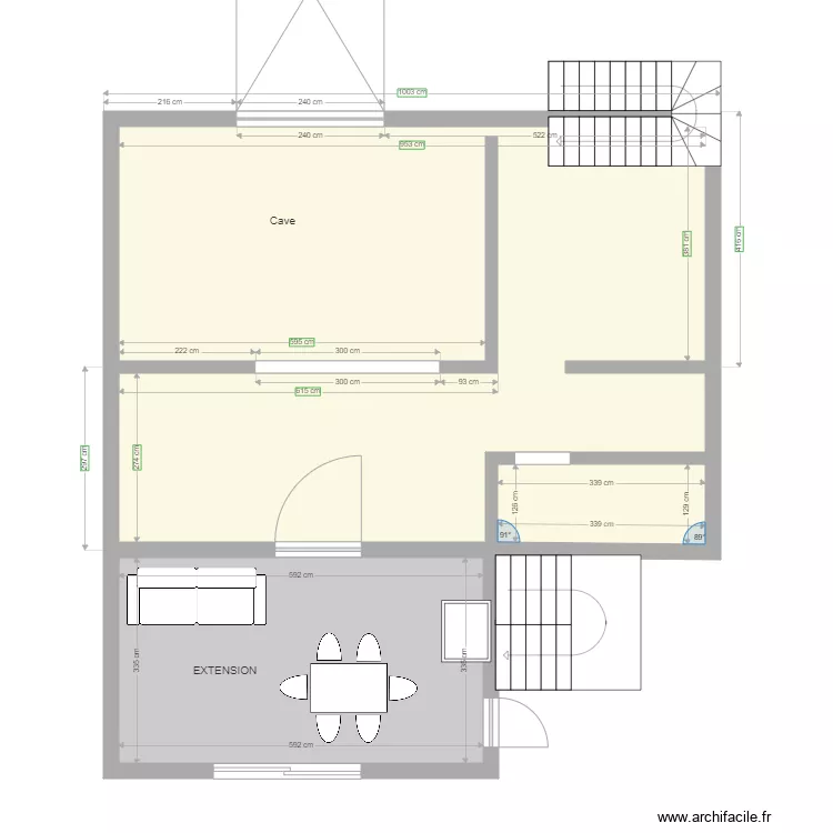
Projet d'extension côté jardin de la maison individuelle située au: 5 Avenue de la Division Leclerc 93150 Blanc Mesnil.
L'accés se fait depuis le garage de la maison, l'extension sera de 20 m2 en RDC, avec un escalier extérieur donnant sur la dalle de l'extension. Les murs seront en briques parpaings. La construction nouvelle sera aux normes RT2012 selon la loi en vigueur.
Détails du plan
- Plan commencé le 02/05/2020 à 16:19 par SAIGPREVENTION93500
- Modifié le 26/05/2020 à 00:50 par SAIGPREVENTION93500
- Partage : Lecture
Mots clés
Liste des pièces
Aucune pièce n'a été créé sur ce plan.
Liste des objets
| Nom de l'objet | Nombre |
|---|---|
| Canapé 3 places | 1 |
| Escalier demi tournant | 2 |
| Fenêtre de toit | 1 |
| Table 4 - 6 pers. 80 x 125 cm | 1 |
Lien vers ce plan
Lien pour partager le plan Said1
Image du plan
Copier et coller le code ci dessous
Partagez ce plan
Vous aimez ce plan ?
Cliquez sur J'aime et gagnez des fonctionnalités