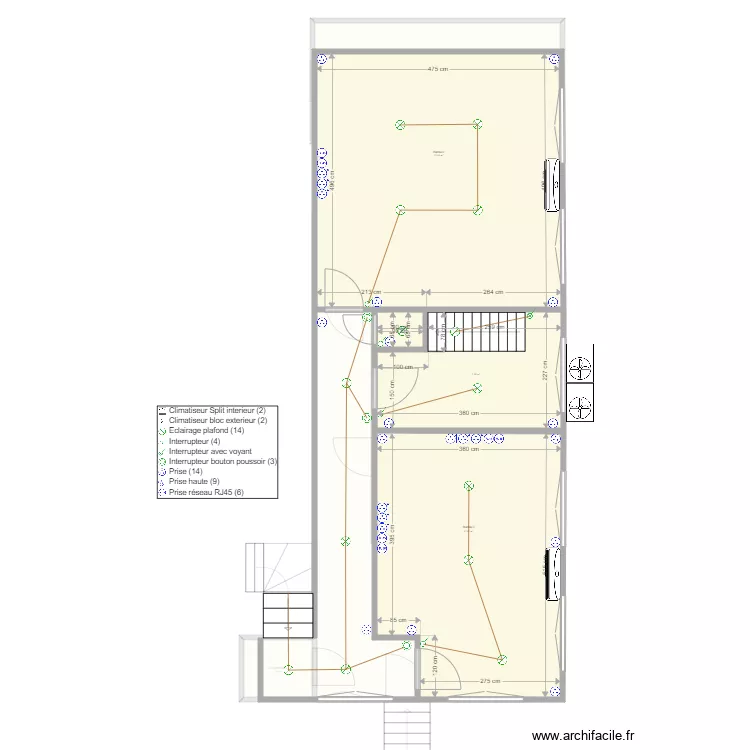
Bureaux Givry Etage 1 Electricité 240520
Plan de

Description
Bureaux Rez de Chaussée et 1er étage
Détails du plan
- Plan commencé le 24/05/2020 à 18:54 par Rhea
- Modifié le 24/05/2020 à 18:54 par Rhea
- Partage : Utilisation
Mots clés
Liste des pièces
Aucune pièce n'a été créé sur ce plan.
Liste des objets
| Nom de l'objet | Nombre |
|---|---|
| Légende | 1 |
| Climatiseur bloc exterieur | 2 |
| Climatiseur Split interieur | 2 |
| Eclairage plafond | 14 |
| Escalier droit | 4 |
| Escalier quart tournant | 1 |
| Interrupteur | 4 |
| Interrupteur avec voyant | 1 |
| Interrupteur bouton poussoir | 3 |
| Prise | 14 |
| Prise haute | 9 |
| Prise réseau RJ45 | 6 |
Lien vers ce plan
Lien pour partager le plan Bureaux Givry Etage 1 Electricité 240520
Image du plan
Copier et coller le code ci dessous
Partagez ce plan
Vous aimez ce plan ?
Cliquez sur J'aime et gagnez des fonctionnalités