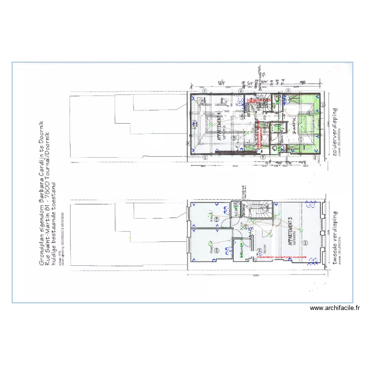
Plan CARDIJN Electricite R2 et combles
Plan de

Détails du plan
- Plan commencé le 19/04/2021 à 17:50 par chef des pandas
- Modifié le 19/04/2021 à 18:04 par chef des pandas
- Partage : Utilisation
Mots clés
Liste des pièces
Aucune pièce n'a été créé sur ce plan.
Liste des objets
| Nom de l'objet | Nombre |
|---|---|
| Texte | 3 |
| Chaudière à Gaz | 2 |
| Eclairage plafond | 8 |
| Eclairage spot | 6 |
| Interphone | 2 |
| Interrupteur | 7 |
| Interrupteur va et vient | 8 |
| Prise | 39 |
| Prise lave linge | 2 |
| Prise réseau RJ45 | 6 |
| Prise TV | 6 |
| Tableau électrique Basse Tension | 2 |
| VMC bouche d'extraction | 6 |
Lien vers ce plan
Lien pour partager le plan Plan CARDIJN Electricite R2 et combles
Image du plan
Copier et coller le code ci dessous
Partagez ce plan
Vous aimez ce plan ?
Cliquez sur J'aime et gagnez des fonctionnalités