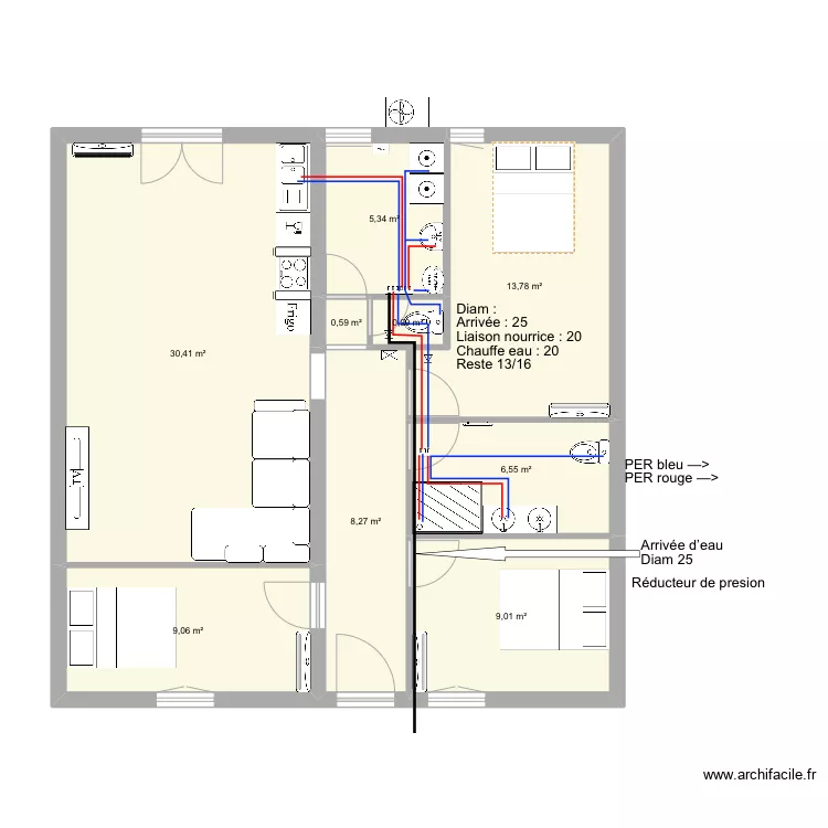
Castel T4 RDC - Plomberie
Plan de

Détails du plan
- Plan commencé le 01/04/2024 à 15:08 par Avenir Renovations 31
- Modifié le 02/04/2024 à 00:44 par Avenir Renovations 31
- Partage : Utilisation
Mots clés
Liste des pièces
Aucune pièce n'a été créé sur ce plan.
Liste des objets
Lien vers ce plan
Lien pour partager le plan Castel T4 RDC - Plomberie
Image du plan
Copier et coller le code ci dessous
Partagez ce plan
Vous aimez ce plan ?
Cliquez sur J'aime et gagnez des fonctionnalités